做事認真
案例簡介:色彩明亮的客廳,暖冬的時候陽光灑滿整個客廳理想空間,質地柔軟的沙發,立體感極強的裝飾立面,陽光穿透灰色的紗簾灑落在橡地板上,顯現出無盡的溫暖與明朗,讓房子的主人更加舒適享受生活帶來的幸福時光。放屋里每一處的軟裝都代表了新步入婚姻的新人對美好生活的向往,每一處都很溫馨。
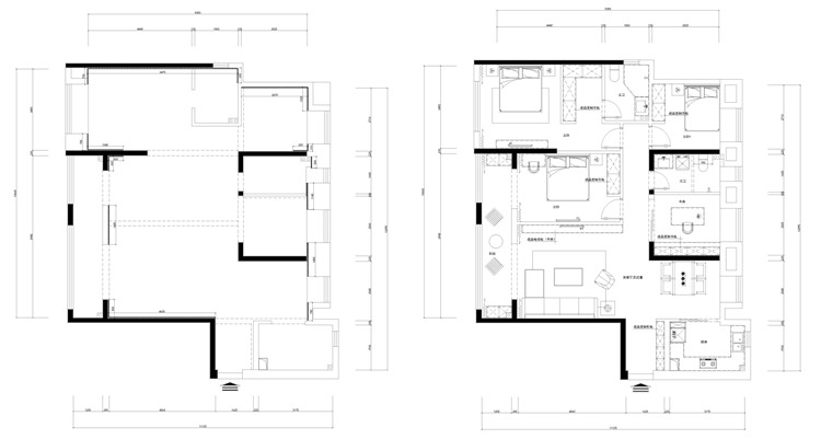
戶型解析:

正榮紫闕臺三居室現代簡約風格住宅的面積是141平方米,房子的陽臺很大陽光很暖,客廳空間具有保障朝向很理想。不足的則是三個臥室在分布的位置方面比較擁擠,存在著臥室不私密方面的問題。不過房屋的廚房是具有窗戶的,烹飪的同時完全可以滿足家庭中通風衛生的要求。
客廳:




立體感強的裝飾墻面搭配造型獨特的布藝沙發看起來便很溫暖,客廳的綠植增加了聲氣的同時造型也獨特簡單。
臥室:


保障了床鋪和儲物功能都重視的同時,臥室內部還安裝了電視機,在臥室休息的時候可以觀看電視,符合了很多年輕人的生活習慣。
書房:


簡約的書柜以及工作的座椅可以感覺到現代的氣息,書房的燈也透露出來一種藝術感。
案例簡介:這個簡約的家,有種獨特的清爽干凈,仿佛是鹽系低糖奶茶的空間,溫暖質感精致簡約而不單調。根本不用打光,滿屏都是高級感的奶系暖色調的高級溫暖至于的理想住宅。新婚夫妻對時尚有著自己的理解,陽臺的空間也給予了溫馨的設計,小兩口每天回到家里心情都會是美美的。
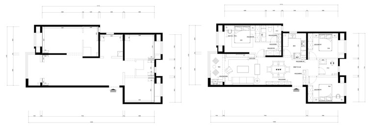
戶型解析:

楊春湖景苑四居室現代簡約風格住宅的面積是150平米,足夠的面積確保了戶型四面通風的狀態,冬暖夏涼的戶型條件使得居住舒適感有效的提升。房屋的客廳朝向以及空間都很好,不足的是三個臥室之間的距離比較近,這樣在夜晚居住中會存在私密性不好的問題,在臥室裝修中需加強隔音處理。
客廳:


奶茶色的色調搭配了奶茶色的時尚沙發,就連墻上高大獨特的掛畫都彰顯出了現代簡約的狀態。
餐廳:


方正的餐廳搭配了奶茶色現代的桌椅,墻上的掛畫看起來簡單卻具有獨特的藝術氣息。
臥室:


臥室仍舊保持了奶茶色的色調,每一處空間合理利用的同時,墻上掛畫都是獨特的現代簡約風格。
書房:

用心設計的書房滿足了工作和休閑的需要,工作勞累之后可以觀看電視,即便是一整天窩在書房也不會感覺到勞累。
案例簡介:輕是一種優雅的態度,低調舒適,但不損害高貴的優雅;奢是一種既不讓人有壓力,又追求品質和精致生活的狀態。三居室房主喜歡輕奢的風格,對于高貴優雅卻有著直接,房屋設計中將兩種因素充分融合進入。并且設計中充分的考慮到房主多子這樣的一個因素,在每一個臥室設計都別出心裁。
戶型解析:

琨御府三居室輕奢風格住宅面積是118平方米,房屋做到了四面通風的效果。房屋的臥室空間足夠,一個主臥兩個次臥,并且主臥內部具有衛生間。觀察房屋的客廳,客廳的空間也是足夠的,對于多子家庭而言,無論是臥室居住還是客廳活動都滿足了日常生活中的需求,并且廚房衛生間位置分布都很合理。
客廳:

現代布藝沙發和簡約背景墻搭配簡單,白色和灰色的色調搭配感覺很舒適。
臥室:



臥室的設計同樣簡單,每一個臥室都保障了床鋪的舒適度以及大衣柜的設計,居住和儲物都很方便。
知精準報價 避裝修深坑
選擇您喜歡的風格
現代輕奢
現代美式
北歐
新中式
歐式
其他
知精準報價 避裝修深坑
選擇房屋面積區間
您的戶型
兩居室
三居室
四居室
五居室
六居室
知精準報價 避裝修深坑
稍等片刻,您的報價正在生中......
知精準報價 避裝修深坑
每日僅限前10名用戶