今日股市推荐排名-热点股票指标公式-【东方资本】,如何股票做空,可靠的股票配资平台是哪个,股票开通t 0最简单三个步骤

24小時咨詢電話
027-82411111
當前位置 : 首頁 > 戶型解析 > 楚天都市雅園120㎡三居室現代簡約雅居戶型解析
楚天都市雅園120㎡三居室現代簡約雅居戶型解析
發布時間 : 2022-02-28 09:49
查看數 :

    案例簡介:


    現代風的時尚氣息與美式風的浪漫風情都是業主都偏愛的,也因此在進行該房屋裝修的時候,融入了兩種裝修風格的設計元素,讓空間在風格的碰撞中呈現出不一樣的美感,讓幸福生活得到更進一步的提升。而色彩的搭配選擇上,則是選用了經典且保守的灰白搭配作為主基調色,以避免空間出現多種裝修風格而顯得過于凌亂。


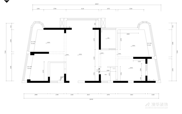
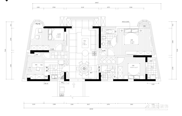
    戶型分析:


1.jpg

2.jpg


    位于楚天都市雅園的這套120㎡三居室房屋,空間并非傳統的方正格局,需要將犄角空間進行更加合理的規劃設計,才能保證每一寸空間都不會被浪費。軟隔斷與硬隔斷的搭配使用,讓不同功能空間的劃分有了主次之分,而兒童區域則使用了靚麗的色彩進行裝飾,營造童心韻味。臥室區域則將外墻直接打通設計為落地窗,彰顯空間的明亮格調美。


    客廳:


3.jpg


    客廳區域使用了經典的灰白色搭配,強調素雅潔凈氣息。幾何放射形圖案的背景墻面則為客廳注入了一抹律動氣息,避免空間看起來過于的素雅單調。


    餐廳:


4.jpg


    灰色的墻面搭配上山水畫,為餐廳區域奠定了清新氛圍。大面積的置物柜既提升了空間利用率,又可巧妙利用各類物件裝飾點綴空間。


    臥室:


5.jpg


6.jpg


    淡暖黃色的墻面搭配上幾何圖形地毯,強調一種素雅柔和氣息。大面積的落地窗則確保陽光能夠直接撒落在床上,讓空間多一抹溫暖自然美。


預約設計師
海量行家, 搶訂免費設計服務
每日前20名申請用戶, 獲3D裝修設計圖
推薦相關案例
免費獲取同款設計方案
姓名*
樓盤*
電話*
*為了您的權益, 您的隱私將嚴格保密
預約成功
您已報名成功, 稍后會有客服人員聯系您。 您的隱私將被嚴格保密。
關注二維碼了解更多裝修知識
聯系我們
裝修咨詢電話 : 027-82411111
售后服務電話 : 027-82866788
公司地址 : 武漢市江岸區澳門路232號金冠大廈
關于我們
友情鏈接 :
    武漢澳華裝飾設計工程有限公司 頁面版權所有 m.lygtdj.com

    算一算,您家裝修需要花多少錢?

    知精準報價 避裝修深坑

    01/03

    選擇您喜歡的風格

    • 現代輕奢

    • 現代美式

    • 北歐

    • 新中式

    • 歐式

    • 其他

    算一算,您家裝修要花多少錢?

    知精準報價 避裝修深坑

    02/03

    選擇房屋面積區間

    • 80-100㎡
    • 100-140㎡
    • 140-200㎡
    • 200-300㎡
    • 300㎡以上

    03/03

    您的戶型

    • 兩居室

    • 三居室

    • 四居室

    • 五居室

    • 六居室

    算一算,您家裝修要花多少錢?

    知精準報價 避裝修深坑

    0%

    稍等片刻,您的報價正在生中......

    算一算,您家裝修要花多少錢?

    知精準報價 避裝修深坑

    您的完整報價已經生成

    報名成功享搶訂優惠名額

    每日僅限前10名用戶