案例介紹:女業主是一家上市企業的高管,夫妻二人都是80后,有一雙可愛的子女,二人對生活品質均有較高要求,對這套300㎡的華僑城別墅有較高的裝修期待。女業主青睞歐式風格,希望呈現出富麗高雅的視覺氛圍,也希望設計師在進行設計時能滿足不同年齡段的生活需求,為孩子提供一個足夠靜謐舒適的學習生活空間。
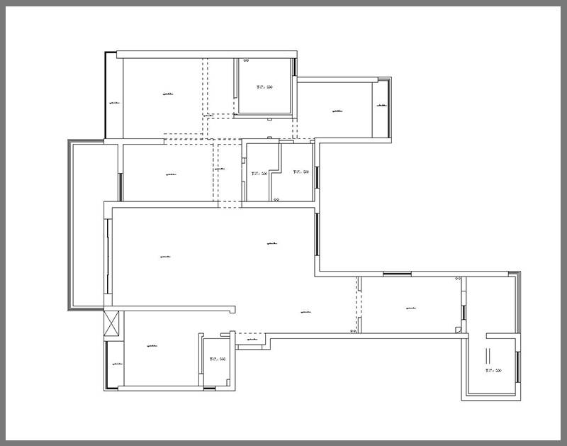
戶型解析


這套位于華僑城的300平方米五居室戶型整體方正歸整,客餐一體,橫廳大,公共活動空間寬敞,主次臥帶有衛生間,生活舒適度高,戶型缺點在于,右下角空間呈手槍型,餐廳到廚房的距離有些狹長,拐角處容易出現采光死角,在這個部分增置了一些軟裝設計,緩解了空間帶來的壓抑之感。
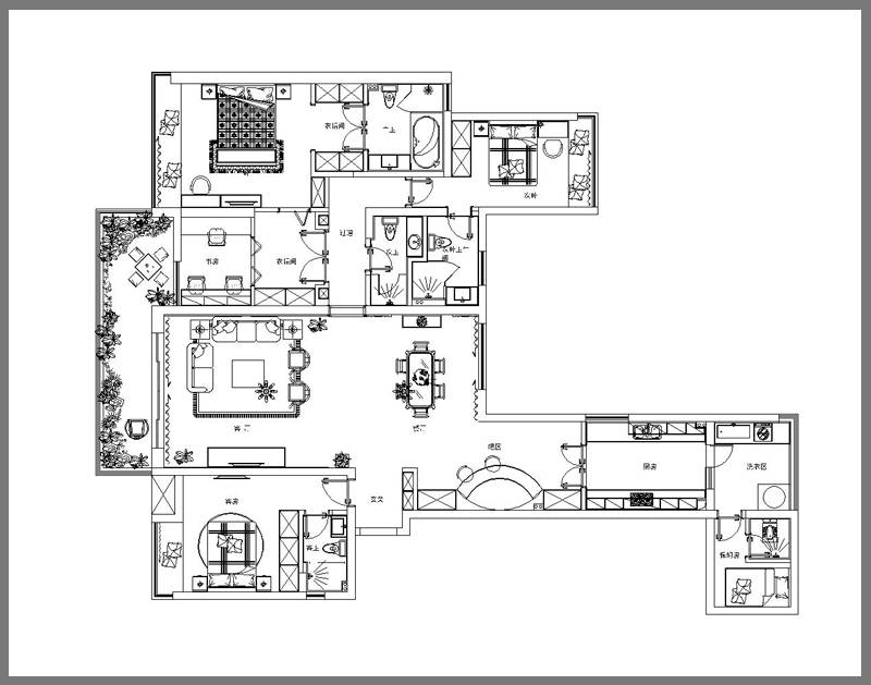
客廳


客廳吊頂精雕細琢,造型上極為講究,整體空間以香檳色為主調,白色、棕色搭配其中,歐式典雅的家具和軟裝提升了空間層次感,步入空間,瞬間就能感受到這份華麗高貴的空間氛圍。
餐廳

餐廳位于客廳一側,菱形磚面的延伸,延續了高貴華麗的調性,左側墻面增置了鏡面裝飾,令用餐氛圍更加明亮精致。
臥室

臥室墻面采用對稱手法設計,鏡面裝飾令空間豐富不失主次,燈光的點綴下,空間顯得更為寬敞明亮。背景墻中部采用軟包隔音設計,為主人提供一種安靜舒適的生活體驗。
知精準報價 避裝修深坑
選擇您喜歡的風格
現代輕奢
現代美式
北歐
新中式
歐式
其他
知精準報價 避裝修深坑
選擇房屋面積區間
您的戶型
兩居室
三居室
四居室
五居室
六居室
知精準報價 避裝修深坑
稍等片刻,您的報價正在生中......
知精準報價 避裝修深坑
每日僅限前10名用戶