今日股市推荐排名-热点股票指标公式-【东方资本】,如何股票做空,可靠的股票配资平台是哪个,股票开通t 0最简单三个步骤

24小時咨詢電話
027-82411111
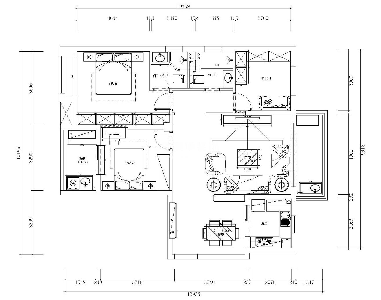
當前位置 : 首頁 > 戶型解析 > 臥龍墨水湖邊140㎡三居室新中式雅苑戶型解析
臥龍墨水湖邊140㎡三居室新中式雅苑戶型解析
發布時間 : 2022-03-02 10:35
查看數 :

    案例介紹:業主是一對偏愛中式傳統文化的年輕人,因此在進行家裝的時候希望能夠融入一些中式元素,增加空間的復古典雅韻味。為了契合業主的審美,設計師選用了兼顧時尚氣息與傳統中式韻味美的新中式家裝風格,同時借助一些復古元素的搭配使用來營造一種雅而不俗的傳統韻味。


    戶型解析


1.jpg


    這座位于臥龍墨水湖邊的140㎡三居室住宅的結構相對比較方正規整,結構缺陷比較小,最大的空間問題在于客廳區域與就餐區域的面積不夠大,因此設計師在進行規劃設計的時候僅借助視覺的分隔來起到空間劃分的作用,以從視覺上起到放大整個家居空間的作用。而玄關處則是借用簡單的裝飾設計,來緩解空間面積不大所帶來的壓抑感。


    玄關:


2.jpg


    由于玄關處面積并不大,因此設計師在對該區域沒有做過多的裝飾設計,而是借助簡單的禪意掛畫及門框鑲邊設計進行裝飾,在強調空間精致度的同時不造成壓迫感。


    客廳:


3.jpg


    客廳區域使用了厚重感較強的深棕色電視柜,以強調中式風所特有的端莊大氣感。而白色系的沙發則讓空間的厚重感得到緩解,為空間增添了清新韻味。


預約設計師
海量行家, 搶訂免費設計服務
每日前20名申請用戶, 獲3D裝修設計圖
推薦相關案例
免費獲取同款設計方案
姓名*
樓盤*
電話*
*為了您的權益, 您的隱私將嚴格保密
預約成功
您已報名成功, 稍后會有客服人員聯系您。 您的隱私將被嚴格保密。
關注二維碼了解更多裝修知識
聯系我們
裝修咨詢電話 : 027-82411111
售后服務電話 : 027-82866788
公司地址 : 武漢市江岸區澳門路232號金冠大廈
關于我們
友情鏈接 :
    武漢澳華裝飾設計工程有限公司 頁面版權所有 m.lygtdj.com

    算一算,您家裝修需要花多少錢?

    知精準報價 避裝修深坑

    01/03

    選擇您喜歡的風格

    • 現代輕奢

    • 現代美式

    • 北歐

    • 新中式

    • 歐式

    • 其他

    算一算,您家裝修要花多少錢?

    知精準報價 避裝修深坑

    02/03

    選擇房屋面積區間

    • 80-100㎡
    • 100-140㎡
    • 140-200㎡
    • 200-300㎡
    • 300㎡以上

    03/03

    您的戶型

    • 兩居室

    • 三居室

    • 四居室

    • 五居室

    • 六居室

    算一算,您家裝修要花多少錢?

    知精準報價 避裝修深坑

    0%

    稍等片刻,您的報價正在生中......

    算一算,您家裝修要花多少錢?

    知精準報價 避裝修深坑

    您的完整報價已經生成

    報名成功享搶訂優惠名額

    每日僅限前10名用戶