案例簡介:本案例的業主是高級白領,對家有著自己獨特的了解,因此在與設計師交流的時候表達了自己希望擁有一個個性化的家居空間。同時,由于業主夫婦目前帶有一個剛上幼兒園的小朋友,因此在設計的時候希望能夠將童真也融入其中,為孩子打造一個趣味十足的生活空間。基于此,設計師選擇了個性感相對比較濃厚的美式裝修風格,再搭配以各種清新明麗的色彩,來營造一種自由灑脫而又不失童真的個性家居。
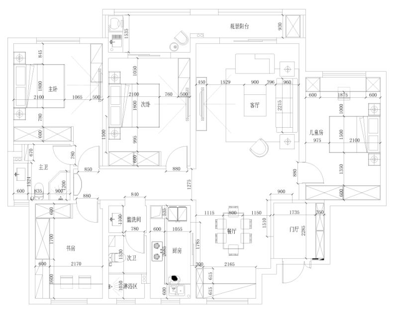
戶型解析:


復地東湖國際這套170㎡的四居室住宅戶型相對比較平整方正,而由于入戶門在房屋偏角處,因此設計師在進行規劃設計時就利用入戶門軸向作一個劃分,將作伴區域作為業主的辦公、休憩區域、中間則設置為會客區域,右邊則打造為兒童房,有效提升了各個功能區域的劃分。
玄關:


一個簡潔的白色儲物柜搭配上褐色矮腳小凳就構成了玄關處的軟裝,簡約耐看而又不失實用性。
客廳:



淺藍色墻面搭配上簡約的風景畫,一種悠然自得的清新感流淌在空間。而柔軟的深灰色絲絨沙發,則為空間增添了品質格調。
餐廳:



淡藍色的墻面為就餐區域增添了一抹清新明麗的氛圍,而造型優雅的餐座椅則讓整個就餐區域多了一抹精致的浪漫感。
廚房:



大面積的淺色瓷磚確保了廚房油煙能夠得到更好的清理,而懸掛式櫥柜的存在則有效提升了空間利用率。
臥室:



臥室區域使用了大面積的淺色作為主基調色,營造溫馨柔和氛圍,而撞色的床具則讓整個臥室更具個性感。
衛生間:


半圓弧的玻璃滑門既可以起到干濕分離的作用,又為衛生間增添了一抹藝術氛圍。
知精準報價 避裝修深坑
選擇您喜歡的風格
現代輕奢
現代美式
北歐
新中式
歐式
其他
知精準報價 避裝修深坑
選擇房屋面積區間
您的戶型
兩居室
三居室
四居室
五居室
六居室
知精準報價 避裝修深坑
稍等片刻,您的報價正在生中......
知精準報價 避裝修深坑
每日僅限前10名用戶