案例簡介:業主是一對新婚夫妻,偏愛歐洲文化,但是又不喜歡過于繁瑣的設計,希望能夠加入一些現代簡約元素。同時,為了節約裝修成本,業主提出盡量不要破壞原有的功能結構。為了滿足業主的使用需求,設計師借用色彩來營造歐式風情,同時點綴以現代化元素,強調空間的時尚氛圍感。
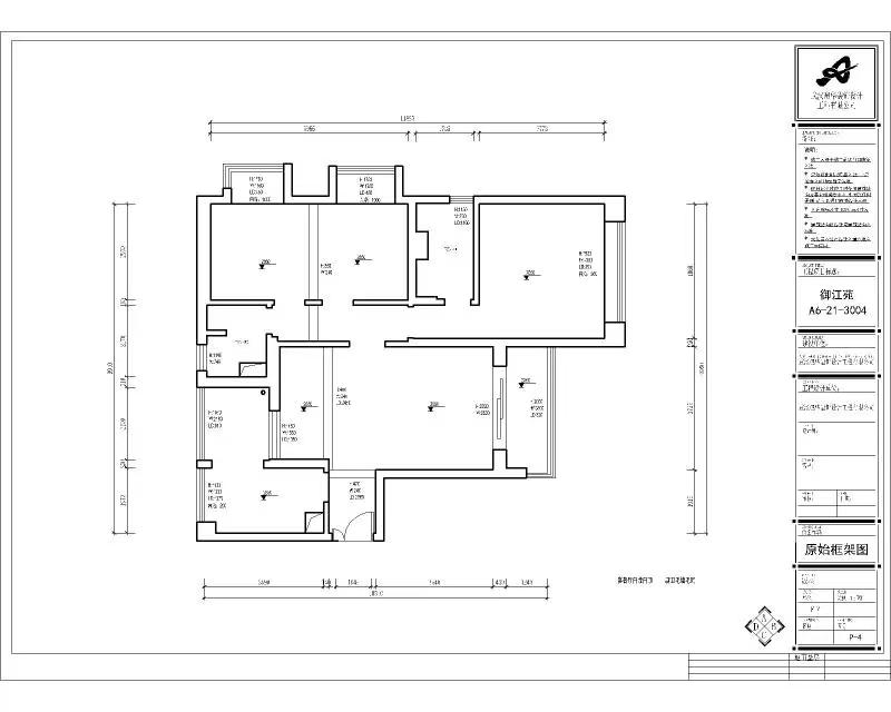
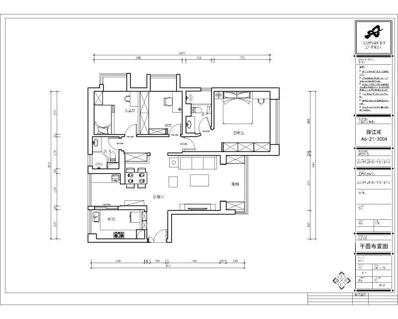
戶型解析:


這套位于御江苑2期的130㎡三居室住宅空間的原有結構功能分區相對比較清晰合理,且能夠滿足業主的使用需求,因此設計師沒有對戶型進行再調整。為提升空間的私密度與起居舒適度,設計師將活動區域與休憩區域進行有效分隔,以保障休憩區域足夠靜謐,進而提升整體生活品質。
客廳:



客廳區域主要通過各類色彩來營造空間的精致感與溫馨氛圍。絲絨材質的藕粉色沙發與藍色幾何圖形地毯之間的碰撞高級而又耐看。墻面的金色鑲邊處理,則讓空間的歐式貴族風情得到展露。
餐廳:

素色墻面搭配上簡單植物掛畫,簡約而又不失小清新田園格調。
兒童房:

藍底印花的自然風壁紙為整個空間增添了自然浪漫氛圍,而雙層式收納床體的設計則能夠滿足多個孩子的起居使用需求。
廚房:

淡藍色的櫥柜搭配上白色瓷磚,整體給人簡約潔凈的舒適感。黑色抽油煙機既可以基本使用需求,又為空間增添沉穩氣息。
知精準報價 避裝修深坑
選擇您喜歡的風格
現代輕奢
現代美式
北歐
新中式
歐式
其他
知精準報價 避裝修深坑
選擇房屋面積區間
您的戶型
兩居室
三居室
四居室
五居室
六居室
知精準報價 避裝修深坑
稍等片刻,您的報價正在生中......
知精準報價 避裝修深坑
每日僅限前10名用戶