案例簡介:本案例的業主是一對75后夫妻,兩個人育有一雙兒女,他們對于家的期望就是足夠干凈整潔且易于打理,因為忙于工作的他們沒有太多時間用于家居整理上?;诖?,設計師選擇了相對比較耐看且不顯臟的新中式裝修風,同時融入各種現代化元素來提升空間的時尚氣息,以保障家居空間能夠更好的為業主服務。
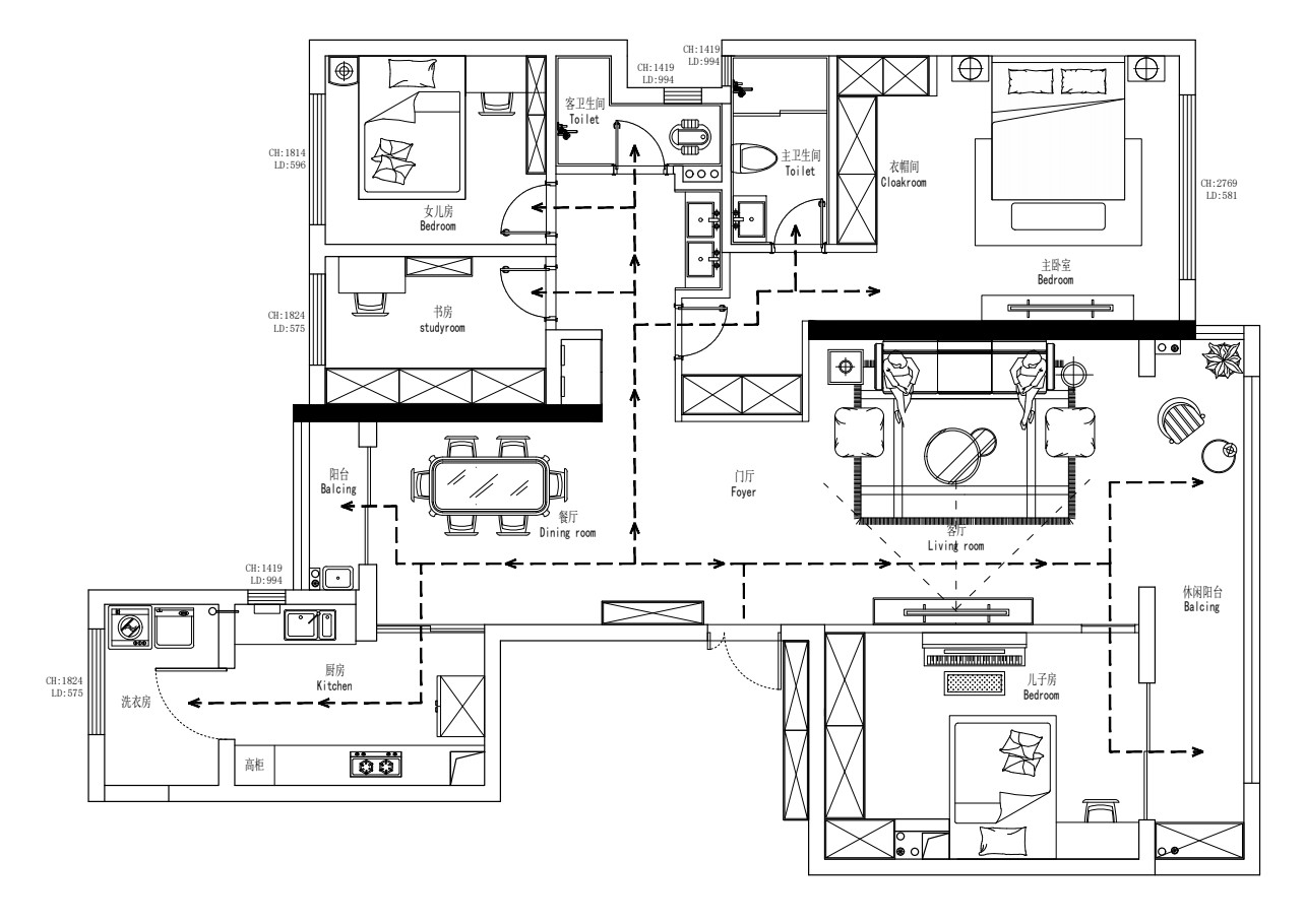
戶型解析:


華發外灘首府的這套180㎡的四居室住宅原有的戶型結構符合業主一家人的起居生活習慣,因此設計師沒有對戶型進行過多的改動。而為了滿足家庭孩子們的閱讀、學習需求,設計師將房屋中原本的次臥改造成一個迷你小書房。而走廊過道處則減少各種花里胡哨的設計,強調簡潔,以便于后續生活的清潔打掃。
客廳:


優雅的灰色耐看且耐臟,搭配以簡約的素雅山水畫,讓空間流淌著清新的古韻氣息。大面積的落地窗則讓室外美景一覽無余。
廚房:

為了節約空間面積,設計師將廚房打造為開放式設計,搭配以各種大收納的櫥柜,實用而又耐看。
臥室:



淡綠色墻面搭配上白色衣柜,整體強調清新簡潔感。而床頭柜處則背帶按照成一個迷你辦公區,有效提升空間利用率。
衛生間:

大面積的白色簡潔清新,搭配以線條深色處理,勾勒出空間的框架感與結構感。
知精準報價 避裝修深坑
選擇您喜歡的風格
現代輕奢
現代美式
北歐
新中式
歐式
其他
知精準報價 避裝修深坑
選擇房屋面積區間
您的戶型
兩居室
三居室
四居室
五居室
六居室
知精準報價 避裝修深坑
稍等片刻,您的報價正在生中......
知精準報價 避裝修深坑
每日僅限前10名用戶