案例簡介:本案業主為90后,比較追求個性、舒適、時尚,作為婚房考慮后期的實用性。 婚房考慮后期的實用性。 北歐風格是注重人與自然、社會、與環境的有機的科學的結合,它的身上集中體現了綠色設計、環保設計、 可持續發展設計的理念;它顯示了對手工藝傳統和天然材料的尊重與偏愛;它在形式上更為柔和與有機,因而富有濃厚的人情味;注重功能,簡化設計,線條 簡練,多用明快的中性色。
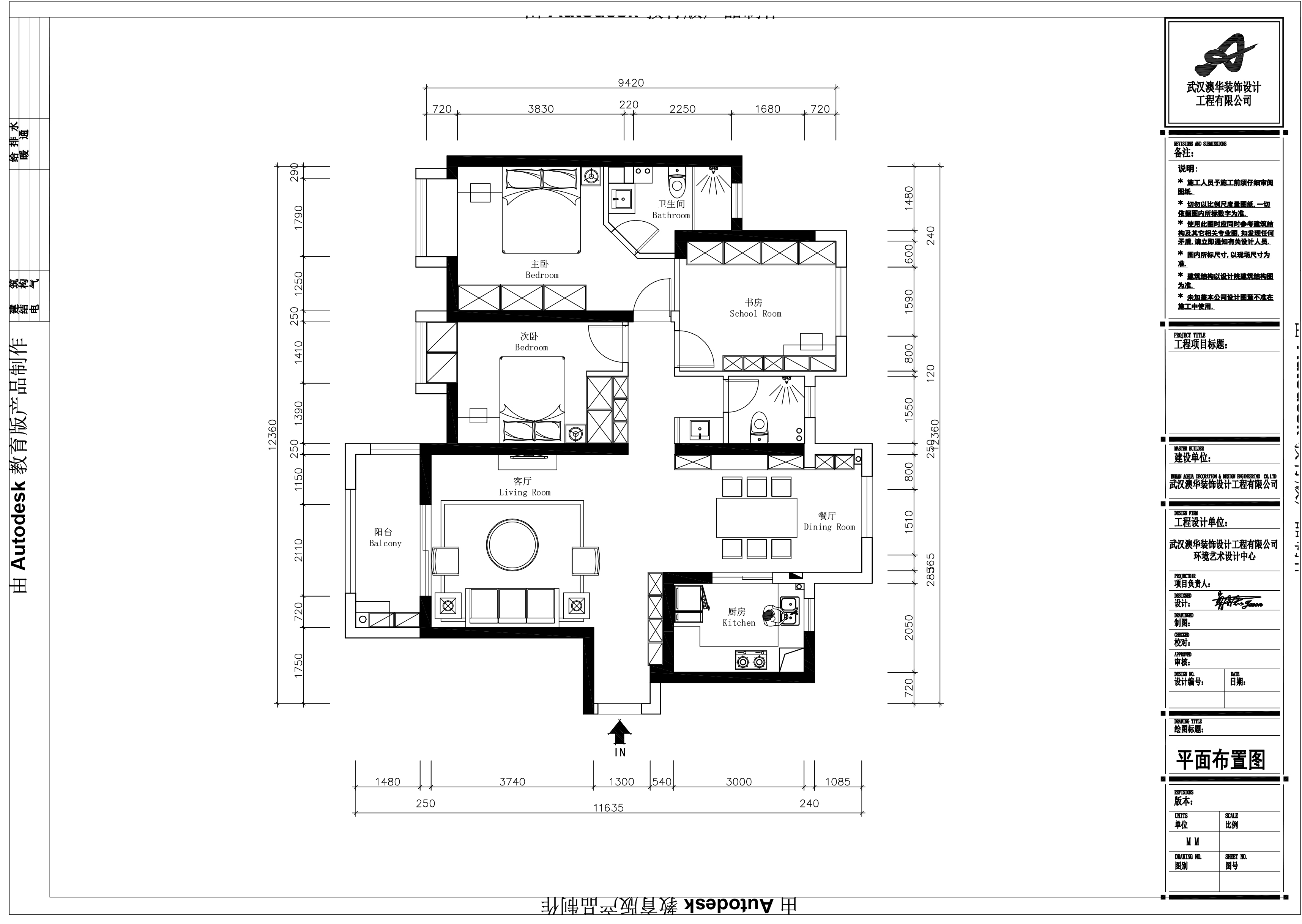
戶型解析:

綠地悅瀾灣這套120㎡的三居室住宅原有的戶型結構十分規整,且不存在著難以設計利用的空間,因此設計師只需要做的就是進行合理的功能分區以及軟裝設計。根據業主的需求與想法,設計師將廚房、客廳、就餐區域設計在距離入戶門較近的區域,而其他空間則打造成臥室、書房等休憩空間,以起到動靜分離的作用。
客廳:

簡約的白色水泥墻搭配上色彩明麗的沙發,整體給人明快清新的高級氛圍感。
臥室:


灰色墻面搭配上個性感強烈的掛畫,滿足居住者審美需求。放射形燈具簡約時尚且易于打理。
書房:

與墻面融為一體的嵌入式儲物架設計藝術感十足而又不失功能實用性。
知精準報價 避裝修深坑
選擇您喜歡的風格
現代輕奢
現代美式
北歐
新中式
歐式
其他
知精準報價 避裝修深坑
選擇房屋面積區間
您的戶型
兩居室
三居室
四居室
五居室
六居室
知精準報價 避裝修深坑
稍等片刻,您的報價正在生中......
知精準報價 避裝修深坑
每日僅限前10名用戶