案例簡介:本案例以簡化整合的設計手法,有效改變了空間的舒適感。業主是一位都市白領,小資中帶著輕奢的生活態度,有一定的生活品位。因此設計師在進行規劃設計時,從空間上去考慮整個房子的舒適感,在功能性上考慮人口的居住實用感。整體色調柔和具有個美感,表達了業主的溫馨而典雅的氣質。
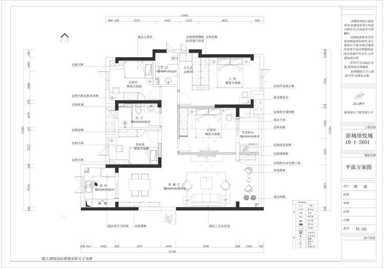
戶型解析:

這套位于新城璟悅城的住宅占地面積約為142㎡,原有的戶型結構中只劃分出三個臥室區域,并不能夠很好的滿足業主一家五口的使用需求。設計師根據家中常住人口對房屋進行了再規劃,放大主臥融入衛浴空間的同時,為男孩、女孩以及老人各自單獨劃分出休憩空間,以滿足不同年齡段家庭成員的日常起居使用需求。由于客廳區域面積相對比較狹長,因此就餐區域就直接設計在休憩區域拐角與客廳區域的銜接處,同時借助軟隔斷進行分隔,提升整體空間使用率。
客廳:


白色與原本色的組合清新又耐看,各類線條鑲邊處理則增加了空間的立體感與格調感。
餐廳:

由儲物柜打造的隔斷實用性性而又不失一定觀賞性,白色常卓義搭配上綠色抱枕,簡約而又不失清新活潑感。
臥室:


白色背景墻搭配上對稱式的線條設計,給人以整潔的大氣韻味。無燈具照明則有效提升空間時尚氛圍。
知精準報價 避裝修深坑
選擇您喜歡的風格
現代輕奢
現代美式
北歐
新中式
歐式
其他
知精準報價 避裝修深坑
選擇房屋面積區間
您的戶型
兩居室
三居室
四居室
五居室
六居室
知精準報價 避裝修深坑
稍等片刻,您的報價正在生中......
知精準報價 避裝修深坑
每日僅限前10名用戶