今日股市推荐排名-热点股票指标公式-【东方资本】,如何股票做空,可靠的股票配资平台是哪个,股票开通t 0最简单三个步骤

24小時咨詢電話
027-82411111
當前位置 : 首頁 > 戶型解析 > 金橋庭院135㎡三居室輕奢風格住宅戶型解析
金橋庭院135㎡三居室輕奢風格住宅戶型解析
發布時間 : 2022-03-16 10:29
查看數 :

    案例簡介:裝飾的靈魂是設計,設計的靈魂是文化。業主是多子家庭,為了可以居住的很舒適便購買了三居室的房屋。在房屋的設計中采取了業務喜歡的輕奢風格,在每一個臥室設計中根據業主以及孩子的喜好來進行。寬敞的客廳作為一家人休閑娛樂的理想選擇,對于多子家庭而言,每一個空間都得到充分利用并且不擁擠。


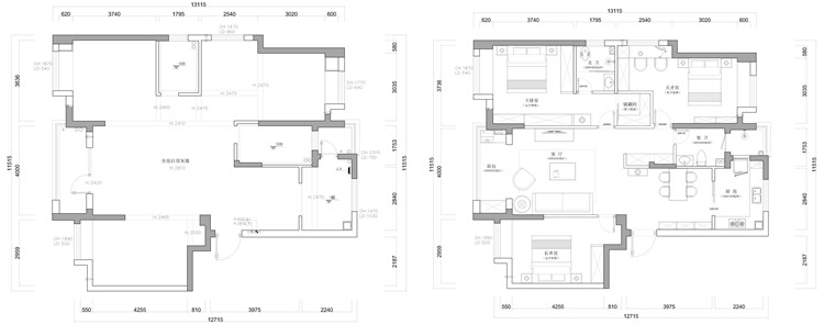
    戶型解析:


1.jpg


    金橋同源三居室輕奢風格住宅的面積是135平方米,戶型整體是很方正的,三個臥室大小符合居住的要求。戶型內部的客廳空間足夠大,廚房以及衛生間的分布都可以滿足多子家庭的需要。為了確保更好的享受陽光,陽臺的光線也是很充足的,戶型設計達到了四面通風的要求,居住中很舒適。


    客廳:


2.jpg


    白色為主色調搭配深色的家具,不僅僅看起來簡單,又可以感受到濃濃的輕奢風格。


    餐廳:


3.jpg


    餐廳和洗手臺連接,用餐之前洗手很方便。餐桌餐椅顏值高,餐椅使用舒適度很高。


    臥室:


4.jpg


    臥室和辦公融合為一體,家長孩子互相不會影響工作以及學習,工作完后便可以上床可以得到充足的休息。


預約設計師
海量行家, 搶訂免費設計服務
每日前20名申請用戶, 獲3D裝修設計圖
推薦相關案例
免費獲取同款設計方案
姓名*
樓盤*
電話*
*為了您的權益, 您的隱私將嚴格保密
預約成功
您已報名成功, 稍后會有客服人員聯系您。 您的隱私將被嚴格保密。
關注二維碼了解更多裝修知識
聯系我們
裝修咨詢電話 : 027-82411111
售后服務電話 : 027-82866788
公司地址 : 武漢市江岸區澳門路232號金冠大廈
關于我們
友情鏈接 :
    武漢澳華裝飾設計工程有限公司 頁面版權所有 m.lygtdj.com

    算一算,您家裝修需要花多少錢?

    知精準報價 避裝修深坑

    01/03

    選擇您喜歡的風格

    • 現代輕奢

    • 現代美式

    • 北歐

    • 新中式

    • 歐式

    • 其他

    算一算,您家裝修要花多少錢?

    知精準報價 避裝修深坑

    02/03

    選擇房屋面積區間

    • 80-100㎡
    • 100-140㎡
    • 140-200㎡
    • 200-300㎡
    • 300㎡以上

    03/03

    您的戶型

    • 兩居室

    • 三居室

    • 四居室

    • 五居室

    • 六居室

    算一算,您家裝修要花多少錢?

    知精準報價 避裝修深坑

    0%

    稍等片刻,您的報價正在生中......

    算一算,您家裝修要花多少錢?

    知精準報價 避裝修深坑

    您的完整報價已經生成

    報名成功享搶訂優惠名額

    每日僅限前10名用戶