小區:正榮紫闕臺
戶型:110㎡;115㎡;125㎡;140㎡;142㎡

正榮·紫闕臺,位于關山大道與南湖大道兩條城市主干道之間,光谷發展主動脈的黃金點上。超13萬方園林,真正住在公園里。
為了給正榮·紫闕臺的業主帶來更好的生活體驗,澳華裝飾的設計師全面解析建面110-142㎡的戶型方案。從居住者出發,從場景入手,平衡視覺效果與居住功能,擴展生活秩序!
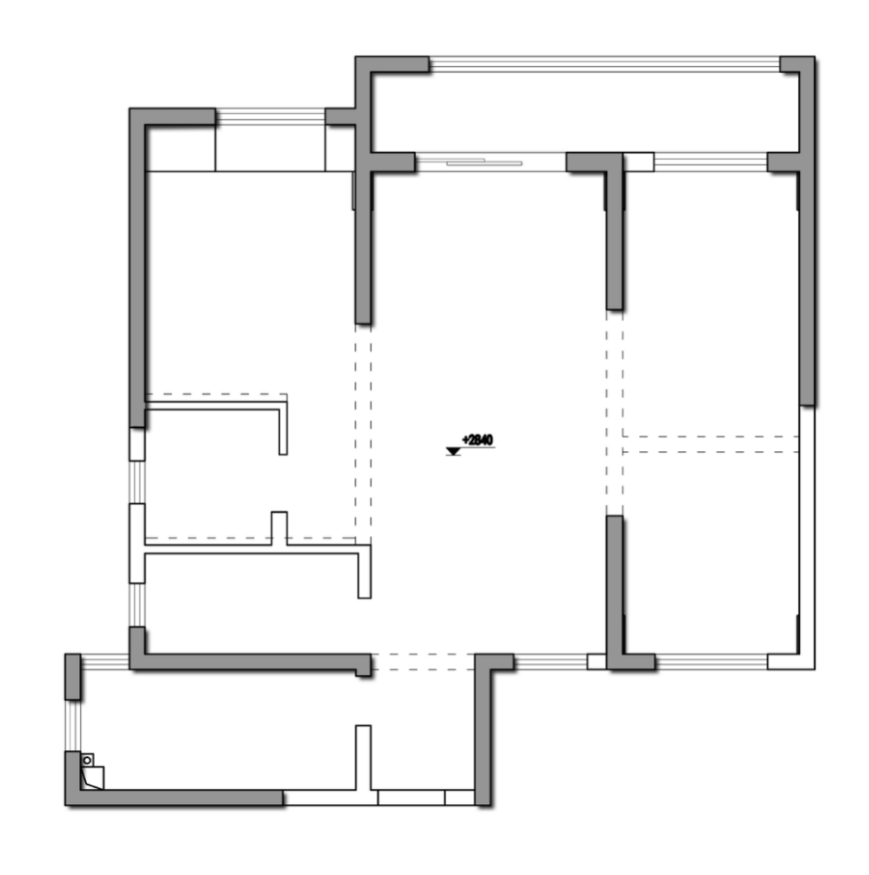
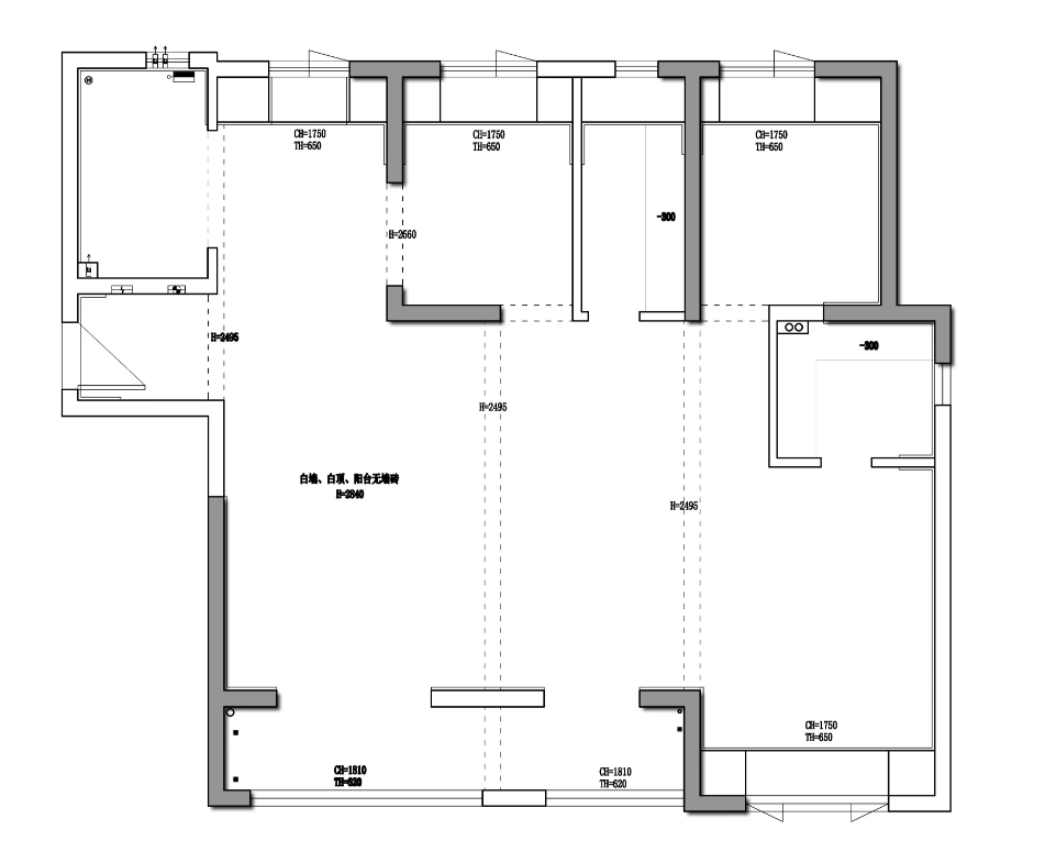
110㎡戶型解析

△原始結構圖
戶型優點
√ 方正空間南北通透
√ 三面采光
戶型缺點
× 廚房不規則,需要做優化
方案
開放式餐廚一體改造

思路解析
1 重點規劃廚房與餐廳,采用開放式廚房設計,延長廚房操作臺面。
2 客餐廳通透布局,全屋空間分布均勻。
效果圖展示


115㎡戶型解析

△原始結構圖
戶型優點
√ 采光通風都很不錯
√ 戶型功能區域劃分清晰
√ 觀景大陽臺
戶型缺點
× 主臥空間與衛生間門的關系需要優化
方案一
客餐廳一體+舒適套房

思路解析
1 入戶鞋柜設計相較于傳統入戶鞋柜更加新穎別致,有效避免空間推積和擁堵。
2 廚房空間較小,將次臥的一部分空間納入廚房,廚房布局呈L型展開,實用方便。
3 客餐廳開放式的布局,客廳陽臺一體化設計,視野更開闊,采光更好。
4 臥室采用L型衣柜設計,豐富了空間層次。儲物面積也擴展不少。有衣帽間做隔斷,主衛門也不對直接對著床,整個睡眠區都保持舒適愜意。
意向圖展示



方案二
“去客廳化”設計

思路解析
1 “去客廳化”設計,打破固定的客廳裝修模式,以居住者的生活方式為起點,舒適至上。客廳陽臺打通后,擺上休閑沙發或茶桌,增加書柜,打造集茶室,書房一體的休閑閱覽室,給家居添加閱讀悠閑氛圍。
2 擴大廚房空間,讓烹飪者有充分的活動空間,U型櫥柜也增加了制餐與備餐的功能性。
意向圖展示

125㎡戶型解析

△原始結構圖
戶型優點
√ 戶型比較方正,南北通透,還有一個超大的陽臺
√ 廚房空間比較大,動靜分區明確
√ 三房兩衛,戶型功能區域劃分清晰
戶型缺點
× 承重墻主要分布在房間以及廚房,限制比較大
× 主臥尺寸不夠大
方案一
愜意大陽臺+實用餐廳

思路解析
1 保留大陽臺,既可以作為生活晾曬區,也可以作為生活休閑區。
2 L型超長櫥柜,增加儲物空間,改為雙推門可以加大視覺通透性,嵌入式冰箱與餐邊柜一體,充分利用空間。
意向圖展示



方案二
陽光書房設計,享受閱讀時光

思路解析
1 次臥打通到陽臺,作為一個陽光書房的區域。
2 書房做榻榻米,增加儲物的空間。
3 主臥L型衣柜,作為一個小的步入式衣帽間。
意向圖展示



140㎡戶型解析

△原始結構圖
戶型優點
√ 戶型比較方正,南北通透,動靜分區明確
√ 三房兩衛,能夠滿足一家四口的居住需求
√ 承重墻部分集中在臥室和衛生間區域,房間部分空間可以優化
戶型缺點
× 廚房空間較小,難以滿足當代人對于廚房電器的需求
× 客餐廳寬度尺寸受限
方案
餐廚一體設計+客廳與書房結合

思路解析
1 餐廚一體設計,增加了櫥柜操作臺面,半敞開式廚房,更符合現代年輕人的生活習慣。
2 客廳和書房一體,增加了客廳的空間感。
3 陽臺融入客廳,讓客廳更寬敞,視野更開闊;陽臺洗衣烘干一體設計,更符合快節奏的生活。
意向圖展示


142㎡戶型解析

△原始結構圖
戶型優點
√ 采光通風好,觀景大陽臺
√ 戶型功能區域劃分清晰,空間動靜分區明朗
戶型缺點
× 北面房間位置不合適獨立運用
× 大框架剪力墻結構固定,只能做小調整
方案一
空間魔法+實用收納

思路解析
1 餐邊柜做廚房一側,廚房做梭門隱藏在餐邊柜背后,盡可能讓餐廳空間變得更大。
2 父母房做背靠背兩組柜子,收納功能增加一倍。做兩扇梭門讓空間變得更加靈動。
3 主臥室改變原始門洞,讓床尾做一排衣柜,比原始的步入式衣帽間更能儲存。
意向圖展示


方案二
實用四房的小資生活

思路解析
1 客廳電視背景柜做滿整面墻體,使空間顯得更整體,再用巖板點綴,更有特色。
2 主臥室不動原墻體,做步入式衣帽間,用衣柜遮擋主衛對門的尷尬。
3 主衛可以使用浴缸,讓生活變得更小資。
意向圖展示



*部分圖片來源于網絡,侵權聯系刪除
知精準報價 避裝修深坑
選擇您喜歡的風格
現代輕奢
現代美式
北歐
新中式
歐式
其他
知精準報價 避裝修深坑
選擇房屋面積區間
您的戶型
兩居室
三居室
四居室
五居室
六居室
知精準報價 避裝修深坑
稍等片刻,您的報價正在生中......
知精準報價 避裝修深坑
每日僅限前10名用戶