小區:城建信達后湖里
戶型:85㎡;104㎡;106㎡;120㎡;122㎡

武漢城建信達后湖里項目自帶約3.3萬方商業,滿足三代便捷生活體驗。周邊環境宜居,附近有夢湖公園、姑嫂樹游園、星悅公園等多個公園,日常閑暇還可以隨時陪同家人散步、游玩,閑適愜意。
為了給城建信達后湖里的業主帶來更好的生活體驗,澳華裝飾的設計師全面解析建面85㎡-122㎡的戶型方案。從居住者出發,從場景入手,平衡視覺效果與居住功能,擴展生活秩序!

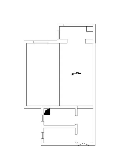
△原始結構圖
戶型優點
√ 戶型功能區域劃分清晰。
√ 擁有觀景陽臺。
戶型缺點
× 入戶過道狹長,空間容易造成浪費。
× 餐廳采光和通透性一般。
× 臥室面積較小,缺少儲物空間。

思路解析
1 入戶處做一整排鞋柜,合理利用狹長的走道同時解決了一部分收納問題。
2 客廳與餐廳一體設計,空間更加開闊通透,解決餐廳采光問題。
3 保留原始結構,舒適兩房滿足三口之家居住。
效果圖展示



△原始結構圖
戶型優點
√ 采光通風都很不錯。
√ 戶型功能區域劃分清晰。
√ 擁有觀景大陽臺。
戶型缺點
× 衛生間位置需謹慎運用。
× 大框架剪力墻結構固定,只能做小調整。

思路解析
1 客廳與餐廳、陽臺一體設計,提升視覺空間,增加了互動場所。封閉式中餐廚房,隔絕油煙。
2 主臥打造L型衣帽間,增加收納;浴室納入主臥,打造功能齊全的舒適套房。
3 次衛做干濕分離,方便多人同時使用。
4 保留三房,滿足多人口家庭居住需求。
效果圖展示



△原始結構圖
戶型優點
√ 采光通風都很不錯。
√ 戶型功能區域劃分清晰。
√ 擁有觀景大陽臺。
戶型缺點
× 衛生間位置需謹慎運用。
× 大框架剪力墻結構固定,只能做小調整。

思路解析
1 客廳與餐廳、陽臺一體設計,提升視覺空間,增加了互動場所。封閉式中餐廚房,隔絕油煙。
2 將一間面積較小的次臥打造成衣帽間,做雙一次型衣櫥+懸浮化妝臺。
3 次衛做干濕分離,方便多人同時使用。
4 浴室納入主臥,打造功能齊全的舒適套房。
效果圖展示



思路解析
1 客廳與餐廳、陽臺一體設計,提升視覺空間,增加了互動場所。封閉式中餐廚房,隔絕油煙。
2 將一間面積較小的次臥打造成衣帽間,做雙一次型衣櫥+懸浮化妝臺。
3 次衛做干濕分離,方便多人同時使用。
4 浴室納入主臥,打造功能齊全的舒適套房。
5 浴室納入主臥,打造功能齊全的舒適套房。次臥利用開闊的陽臺做窗邊懸浮吧臺,豐富生活場景。
效果圖展示



△原始結構圖
戶型優點
√ 戶型方正,采光通風都很不錯。
√ 戶型功能區域劃分清晰,動靜分離。
√ 擁有開闊的觀景大陽臺。
戶型缺點
× 廚房較小,活動受限。

思路解析
1 客廳與陽臺聯通,增大會客區域,提升大氣視覺。
2 客餐廳一體化設計,提升視覺空間的同時,考慮充足儲存空間,增設整排入墻式餐邊柜。
3 主衛納入主臥,增設一字型衣帽間+梳妝臺,形成私密、便捷的舒適套臥。
4 保留三間臥室,滿足多人口家庭居住。
效果圖展示



思路解析
1 客廳與陽臺聯通,增大會客區域,提升大氣視覺。
2 客餐廳一體化設計,提升視覺空間的同時,考慮充足儲存空間,增設整排入墻式餐邊柜。
3 更改廚房開門方位,使與餐廳的動線更加連貫。
4 主衛納入主臥,增設一字型衣帽間+梳妝臺,形成私密、便捷的舒適套臥。
5 保留三間臥室,滿足多人口家庭居住。
效果圖展示



△原始結構圖
戶型優點
√ 戶型方正,采光通風都很不錯。
√ 戶型功能區域劃分清晰,動靜分離。
√ 擁有開闊的觀景大陽臺。
戶型缺點
× 廚房較小,活動受限。

思路解析
1 客廳與陽臺聯通,增大會客區域,提升大氣視覺。
2 客廳餐廳一體化設計,提升視覺空間的同時,考慮充足存儲空間,一整排電視柜連接餐邊柜,超強儲物功能豐富多彩。
3 主臥套間設計,并利用柜體做L型衣帽間;主衛做干濕分離,提升使用體驗。
4 次衛做干濕分離,方便多人同時使用。
5 一間次臥利用陽臺做辦公區,豐富臥室功能。
效果圖展示



思路解析
1 客廳與陽臺聯通,增大會客區域,提升大氣視覺。
2 客廳餐廳一體化設計,提升視覺空間的同時,考慮充足存儲空間,一整排電視柜連接餐邊柜,超強儲物,功能豐富多彩。
3 主臥套間設計,并利用柜體做L型衣帽間;主衛做干濕分離,提升使用體驗。
4 次衛做干濕分離,方便多人同時使用。
5 聯通觀景大陽臺,增加空間的采光和通風,提升觀景體驗。
效果圖展示


知精準報價 避裝修深坑
選擇您喜歡的風格
現代輕奢
現代美式
北歐
新中式
歐式
其他
知精準報價 避裝修深坑
選擇房屋面積區間
您的戶型
兩居室
三居室
四居室
五居室
六居室
知精準報價 避裝修深坑
稍等片刻,您的報價正在生中......
知精準報價 避裝修深坑
每日僅限前10名用戶