裝修圖紙是家居裝修施工的基礎,千萬不要小看這一張小小的圖紙,它掌握的可是你新居的“命脈”,家居的面積、測量、線路分布……無一不是由這張圖紙指揮!
裝修圖紙沒有既定的模板,每個設計師都有自己專屬的畫圖風格,原始勘測圖、平面布置圖和效果展示圖又有不同的標準,因而造就了裝修圖紙的千奇百異。
那么,當一份設計好的裝修圖紙擺在眼前式,我們該如何去看呢?

?
?Part1:?了解裝修基本信息??裝修主要圖紙介紹
1.原始建筑勘測圖

?
什么是原始建筑勘測圖?它包括房間的具體開間尺寸、墻體厚度、層高、房間梁柱位置尺寸、門窗洞口的尺寸位置、各項管井(上下水、煤氣管道、空調暖管、進戶電源)的位置、功能、尺寸等項目,它是一切圖紙的基礎,如果一開始的測量圖紙出現偏差,此后的設計圖紙和施工都會因此出現誤差,導致整個工程無法正常進行。
?
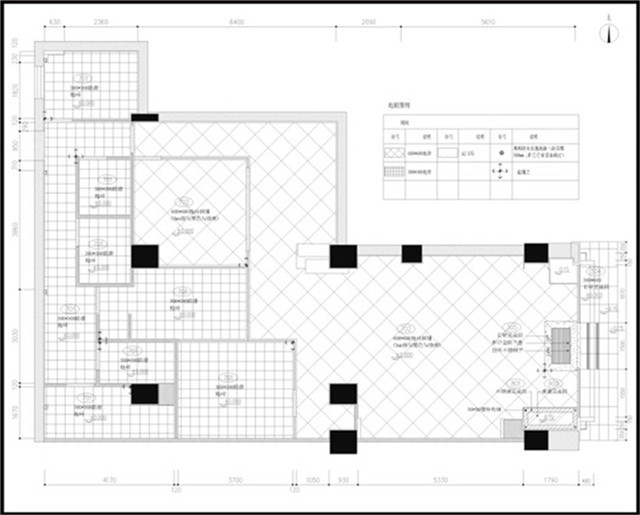
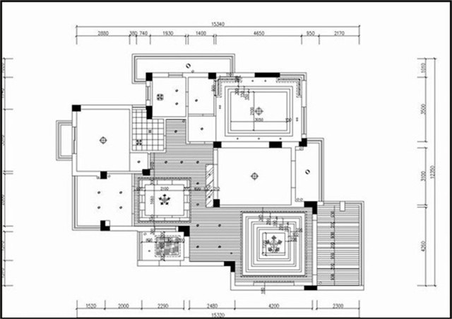
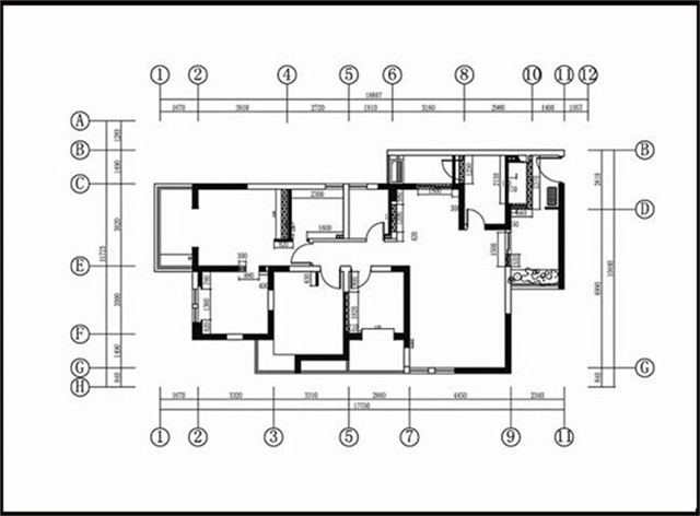
2.平面布置圖

?
平面布置圖中具備的內容較多。其中應具備:墻體定位尺寸、有結構柱、門窗處應注明寬度尺寸;各區域名稱要注全,如客廳、餐廳、休閑區等;房間名稱要注全,如主臥、次臥、書房等;室內、外地面標高、墻體厚度應注明;如有樓梯,標明平面位置的安排、上下方向示意及梯級計算;門的開啟方向;家具布置及盆景、雕塑、工藝品等的配置。
?
3.天花吊頂布置圖

?
天花吊頂布置圖是天花吊頂裝修項目中最重要的圖紙之一,它要求標明天花造型的尺寸定位、燈具位置及詳圖索引,并應標注天花底面相對于本層地面建筑面層的高度,同時還要注全各房間的名稱。
?
4.地面材質圖

?
地面材質圖,顧名思義是關于地面材質的所有包含項,它標明需要鋪設的地面材料種類、地面拼花、材料尺寸及不同材料分界線。
?
5.配電系統圖

?
配電圖是設計圖紙中十分重要的部分,各種電源插座的位置都需要妥善安排,業主在查看配電時,需要注意的是插座的位置、數量,位置的安排要根據實際使用的方便性,綜合考慮門窗、家具的安排,不能讓插座被門窗遮蔽,影響正常使用。
?
?Part2:?常見圖紙介紹??了解清晰避免遺漏
1.建筑改建平面圖

?
建筑改建平面圖是根據設計方案將需要改動結構的墻體在圖紙上標明的標識,比較常見的表示方法是在圖紙上用虛線表示需要拆除的墻體,深色表示改建的墻體。
2.強弱電布置圖

?
強弱電布置圖是關于居室內部所有強電和弱電布置的。房間里所有開關的位置,及每個開關所控制的電器、燈源。
3.給水走向圖

?
給水走向圖是關于廚房、衛生間等處的給排水線路布置圖,給水管道的管徑尺寸、取水位置及高度、管線排布系統等是該圖的重點。
?
4.立面圖、局部放大圖和節點詳圖

?
立面圖、局部放大圖和節點詳圖即從水平角度看到房間局部的剖面圖紙,它包括墻體定位尺寸,各部位裝飾墻面造型的立面圖形、尺寸、構造材料、面層材料名稱;各房間、各部位固定家具造型的立面造型、尺寸等。
?
?
▲了解更多裝修知識,請加澳華微客服“aohuawh”,或關注澳華官方微信“hello-aohua”,我們竭誠為您提供專業的家裝資訊和服務。
?