案例簡介:本案例的業主是企業高管,有著自己的品味與審美,因此希望在家裝設計的過程中能夠展示出自己的品味。而設計師在與業主進行深入交流之后,為業主挑選了品質感較強的現代輕奢風進行整體裝飾,借助簡約的色彩與裝飾賦予空間個性與格調感。
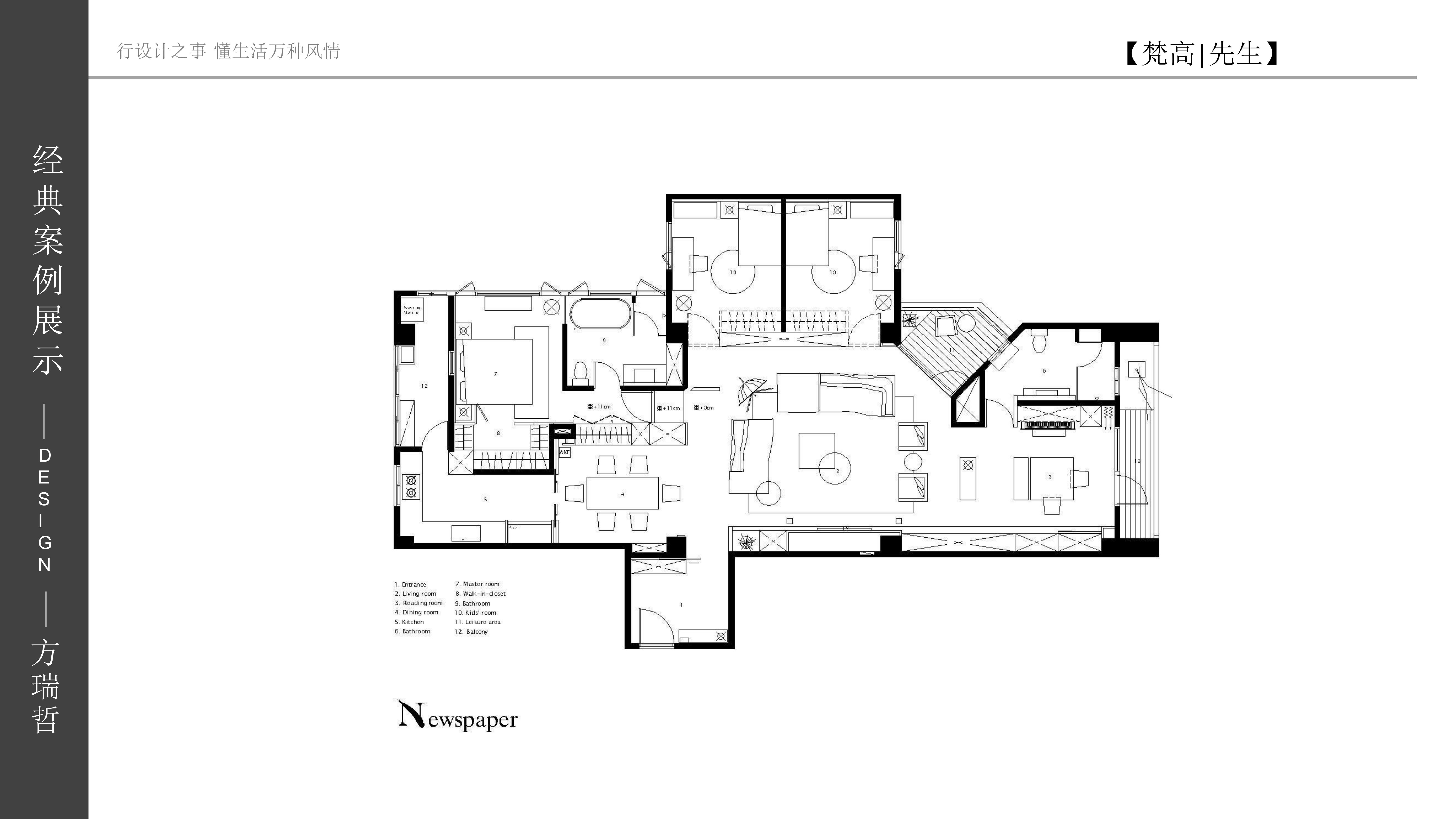
戶型解析:

萬科濱江玉璽這套四居室的住宅占地面積約為265㎡,整個格局雖然較為寬敞,但是原有的戶型結構中存在一些難以利用的小空間,因此需要設計師將空間進行合理的規劃利用,在保障室內和諧感的同時提升空間利用率。走廊處的一塊帶有犄角的小空間面積不大,且局限性較大,因此設計師將該區域直接打造為儲物間,滿足日常收納需求。走廊盡頭的小空間則直接與主臥空間打通,改造成一個迷你的衣帽間,提升主人生活的品質感。
客廳:

客廳以簡約的淺色系色彩為主基調色,強調冷靜沉穩的氛圍感,搭配以亮橘色沙發,為空間增添驚艷高級感。
餐廳:

不同深度的灰色賦予了就餐空間簡約感與結構刊,搭配上大理石餐桌,給人優雅高級格調感。
臥室:

衣柜與背景墻處的金色線條處理簡約而又不失輕奢高級感,搭配以藕色床具、窗簾,給予空間柔和溫馨靜謐感。
案例簡介:現代輕奢風借用了最為簡潔的元素來展示一種由內向外的高級格調感,強調一種內斂的獨特品味,這也是現代輕奢風的魅力所在。而本案例的設計師借助材料絲絨材質、大理石材質等質感元素進行空間裝飾,強調室內氛圍的輕奢優雅感。同時,利用冷暖色系的搭配使用增添室內環境的視覺豐富感與層次感。
戶型解析:

新城錦瑞城這套136㎡的三居室住宅戶型結構上相對比較規整,沒有復雜且難以規劃設計的空間,功能區也比較相近,因此設計師需要權衡好空間的動靜分區。而由于業主工作的性質,設計師單獨劃分出一個區域打造成書房,滿足業主在家辦公需求,同時借助靈活式設計滿足客人休憩使用需求。陽臺區域則借助大面積落地窗將室外陽光盡可能的引入室內,以提升室內采光。
客廳:



由于客廳寬度不夠,因此設計師選擇了長條形沙發,點綴以色彩清新跳躍的抱枕,從視覺上擴大空間寬敞度。
餐廳:


核桃色的木質櫥柜與白色墻面反差感較大,給人以較強視覺沖擊力。
臥室:


淡藍色墻面奠定靜謐柔和氛圍,灰色地毯則平衡了空間的輕柔感,為空間增添一抹沉穩氣息。
案例簡介:本案例的業主是一位獨居人士且近期沒有結婚的打算,因此房屋面積并不大,在與設計師交流時,業主明確的提出休憩空間一定要強調舒適,而整個住宅則要突出自己的個性與品位。設計師按照業主的想法將空間打造成半開放式設計,同時將約一半面積打造成為休憩空間,以滿足業主日常休憩、辦公需求。休憩空間以外的區域則打造成廚房與多功能空間,滿足做飯、會客等多種需求。
戶型解析:

銀泰御華園這套80㎡的公寓式住宅原有格局相對比較規整,而由于空間面積較小,因此設計師在進行規劃設計的時候除了必要的衛浴空間借助硬隔斷外,其他功能區域則借助軟隔斷進行空間分隔,以提升家居環境的通透感。裝修風格的選擇上,設計師則為業主選用了具有個性感與時尚感的現代風,同時借助各種自然系的色彩進行裝飾點綴,為空間增添森系優雅美。
客廳:


綠色背景墻搭配上布藝沙發,營造清新的森系自然風情。
多功能區:

木質地板搭配上幾個可收納式的毯子就構成了多功能區,強調自由隨意感。
臥室:

簡約白色水泥墻搭配上由色塊點綴而成的床具,整體清新而又不失簡約時尚美。
案例簡介:簡約到極致是一種不同的格調與浪漫,它能讓人更好的感受生活本真,也因此不少業主在進行家裝設計的時候都會提出不需要過多的造型設計,希望通過最簡潔的元素展示出空間該有的舒適感與格調感。本案例的設計師借助最經典簡約的色彩搭配、最為常見的元素進行組合,營造出一種簡約而不簡單的高級格調感。
戶型解析:

招商城這套145㎡的三居室住宅戶型結構中存在著較多的細小角落,且空間走廊處過于擁擠,因此需要設計師對空間進行再次規劃設計,化解空間劣勢。設計師按照空間的結構特點,將處于犄角區域的小空間打造成一個迷你的儲物間,同時借助素雅的設計降低該空間的存在感。走廊過道處則利用相對比較潔凈的元素進行裝飾,搭配以明亮燈具,從視覺上起到擴大走廊的作用。
客廳:



溫潤質感十足的木質地板搭配上簡約的白色嵌入式背景墻,整體給人干凈舒適的氣息。
臥室:


臥室區域沿用與其他功能區域一致的簡約白色,搭配上灰色背景墻,給人以沉穩柔和的獨特靜謐感。
衛浴空間:


簡約的白色營造自然潔凈感且易于打掃,玻璃推拉門設計則起到很好的干濕分離作用。
案例簡介:輕奢風軟裝幾乎不會出現各種造型華麗的元素,而是借助材料本身的質感進行裝飾點綴,在無形之中起到提升空間質感的作用,這種低調而又高級的軟裝風格是目前大多都市白領所偏愛的。而本案例的業主在借助材料本身質感的同時,融入色彩對比、對稱式等設計原理提升空間的藝術優雅氛圍。
戶型解析:

三和劍橋城這套三居室的住宅占地面積為150㎡,房屋外形相對比較四方,不存在各種難以處理的犄角及細小角落,因此設計師只需根據業主及家人的需求進行功能劃分及軟裝設計即可。根據業主的生活習慣,設計師在主臥區域單獨隔離出一個衛浴空間,以滿足主人私密使用需求。
客廳:



大面積的淺褐色瓷磚強調沉穩氛圍,對稱式的背景墻設計則為空間增添優雅格調。
餐廳:


白色大理石餐桌搭配上不同色彩的曲線型椅子,簡約而又不失跳躍律動美。
衛生間:

衛生間區域使用大面積褐色瓷磚進行裝飾鋪設,同時搭配以長條形收納臺面,突出空間清新質感的同時有效提升空間利用率。
案例簡介:新中式風家裝在設計上借助現代化元素來強調古韻美,同時運用各種簡潔清秀的色彩裝飾空間,讓家居環境更具古韻時尚感,是當前許多文藝人士所偏愛的裝修風格,本案例業主也不例外。設計師根據業主的個人審美及品位,借助大量古韻掛畫裝飾點綴空間,通過畫“延展”空間,為空間增添古典藝術氛圍美。
戶型解析:

佳兆業濱江壹號這套146㎡的四居室住宅整體的結構相對比較方正平整,且南北通透、自帶大體量陽臺,能夠滿足業主基本起居使用需求。而設計師在進行規劃設計時,將入戶拐角處的次臥改造成一個休憩會客區域,滿足業主招待客人使用需求。對稱式的設計則將確保走廊處于同一直線上,有助于提升空間的古樸端莊大氣感。
客廳:


木質柵欄式背景墻搭配上清新山水畫,為空間增添一抹莊重典雅之美。
臥室:

仿明制床具搭配上清新典雅的花鳥壁紙,為空間營造一抹寧靜閑適的優雅格調。
衛生間:

深色暗紋瓷磚沉穩而又不失大氣,玻璃隔斷讓衛生間區域干濕分離更為合理。
知精準報價 避裝修深坑
選擇您喜歡的風格
現代輕奢
現代美式
北歐
新中式
歐式
其他
知精準報價 避裝修深坑
選擇房屋面積區間
您的戶型
兩居室
三居室
四居室
五居室
六居室
知精準報價 避裝修深坑
稍等片刻,您的報價正在生中......
知精準報價 避裝修深坑
每日僅限前10名用戶