今日股市推荐排名-热点股票指标公式-【东方资本】,如何股票做空,可靠的股票配资平台是哪个,股票开通t 0最简单三个步骤

24小時咨詢電話
027-82411111
首頁 > 找設計師 > 案例賞析設計師戶型解析
戶型解析
御江壹品·青山樽154㎡三居室現代時尚住宅戶型解...
三居室
154m2
現代

    案例簡介:現代低調奢華風格這種氣質多數通過一些精致軟裝和材質的質感來體現。營造出舒適、通透、合理的使用空間,讓整個空間透著一種清澈、靜怡、寧和、雅致之美。現代輕奢風格強調簡單中有奢華感受,看似簡潔素凈的外表之下融入時尚輕奢的特質,展示著精致優雅的生活態度,不需要走在前端,更不需要炫耀夸贊,低調,舒適,卻無損高貴與雅致,盡情享受生活的美好。


    戶型解析:




    御江壹品·青山樽這套三居室的住宅建筑面積約為154㎡,原有的戶型結構已經進行了基礎的功能分區,而由于入戶走廊盡頭處的區域面積相對比較寬敞,因此設計師將該區域納入納入主臥空間打造成一個迷你的的衣帽間,同時將旁邊小空間的墻面打通設計為主臥區域的洗浴空間,有效提升空間利用率及主人的生活品質感。


    客廳:


客廳.jpg

    嵌入式背景墻設計讓電視機“隱身”在墻面處,有效提升了空間的現代時尚氛圍。


    餐廳:


餐廳.jpg

    大面積的淺色大理石材質奠定潔凈舒適的氛圍感,搭配以綠色植株,為空間引入自然清新風采。


    書房:




    書房借助木質柵欄進行隔斷,有效提升空間藝術氛圍感的同時增添了區域通透感。


    衣帽間:


鞋帽間.jpg

    簡單的白色儲物柜搭配上灰色地毯,簡約清新,強調實用性。


    主臥:


主臥.jpg

    素色印花墻面清新又耐看,搭配上灰色地毯,增添空間結構感。


頂琇國際城 129㎡四居室美式溫馨住宅戶型解析
四居室
129m2
美式

    案例簡介:本案例的業主是一個三口之家,有一個六歲的寶寶,而父母也偶爾會過來聚一聚,因此業主們對于空間的設計要求是將空間進行再規劃,滿足多位家庭成員的居住需求。同時希望房屋動線設計合理,并設計出足夠的親子互動空間,以保障孩子能夠健康快樂的成長。基于此,設計師對空間進行了重新劃分,同時融入清新明快的元素,強調空間童真氛圍。


    戶型解析:




    頂琇國際城這套129㎡的四居室住宅原有的戶型結構相對比較簡單,并沒有進行一定的功能區域劃分,因此設計師需要根據業主的使用需求對空間進行規劃設計,同時再加以軟裝設計,來提升家居空間的品質感。為了滿足業主的辦公、閱讀需求及孩子的學習需求,空間中特意打造出一塊書房區域,同時借助大面積的開窗設計來提升環境舒適度。


    客廳:




    淡藍色的墻面搭配上淺色暗紋的沙發,低調中又帶有一抹淡淡的清新氣息。木質桌子則與不易沙發之間形成碰撞,提升了空間的立體感與質感。


    餐廳:



    餐廳區域位于客廳區域的延伸處,僅以簡單的木質桌椅構成,強調實用性。


    臥室:



    素色條紋壁紙搭配上淺藍色田園風窗簾,清新典雅而又不失自然浪漫風情。


長江楚韻140㎡三居室歐式品質家居戶型解析
三居室
140m2
歐式風

    案例介紹:業主對家的定義強調質感,追求細膩,喜歡歐式藝術帶來的沖擊,希望家里不經意間就能邂逅歐式藝術,在前期的設計溝通中還了解到,女業主頗愛深紫色,認為紫色自帶歐式宮廷調調,深邃耐看,氤氳優雅,紫色,是女業主心中對家的雛形。


    戶型解析


1.jpg


    戶型本身格格局周正,設計師并未做過多調整;客餐處于同個空間下,橫廳設計,帶來更好的采光和通風,居住也會更加舒適;主臥帶衣帽間和陽臺,拐角處被設計為工作臺,滿足業主日常辦公需求;次臥格局緊湊,到公共衛生間的距離很近,居住舒適;衛浴間做了干濕分離設計,令日常打掃變得更加方便。


    客廳


2.jpg


    客廳吊頂耐人尋味,搭配水晶吊頂,加持了華麗感;客廳家具顏色以黑色為主,搭配女主人頗愛的紫色軟裝,呈現出深邃、浪漫的空間氛圍,使客廳空間更加優雅大氣。


    餐廳


3.jpg


    餐廳私密性強,空間背景鋪貼了歐式墻紙,美觀又容易打理,餐桌椅沿用黑色碰撞紫色的配色方式,演繹出歐式古典與現代的激情碰撞,提升了空間的格調感。


銀泰御華園150㎡三居室現代簡雅家居戶型解析
三居室
150m2
現代

    案例介紹:“做減法”是業主的人生信條,對于新家的定義,也以“簡”字貫穿。業主希望自己及家人生活在簡單舒適的環境中,不被風格形式所限制,家具造型及配色歷久彌新,能夠展現出沒有定義的簡雅家居生活。


    戶型解析

1.jpg


    戶型整體方正,廚房靠近大門,是被不容易出現油煙問題,開放式廚房鏈接餐廳,并與客廳一體化銜接,令整個活動區域更加寬敞明亮,臥室集中分布,主臥帶有陽臺,方便晾曬衣物,各個臥室到公衛的距離不遠,日常使用方便。


    客廳






    整體以白色為主,頂面和電視墻燈帶相互糅合后,呈現出獨特的視覺觀感,布藝沙發圍合式放置,滿足了家庭日常社交需求,地面增置圓形地毯,與方形吊頂對立碰撞,提升了空間的層次感,沙發左側空間設以收納柜面,簡單的線條勾勒出時尚沉穩的力量。


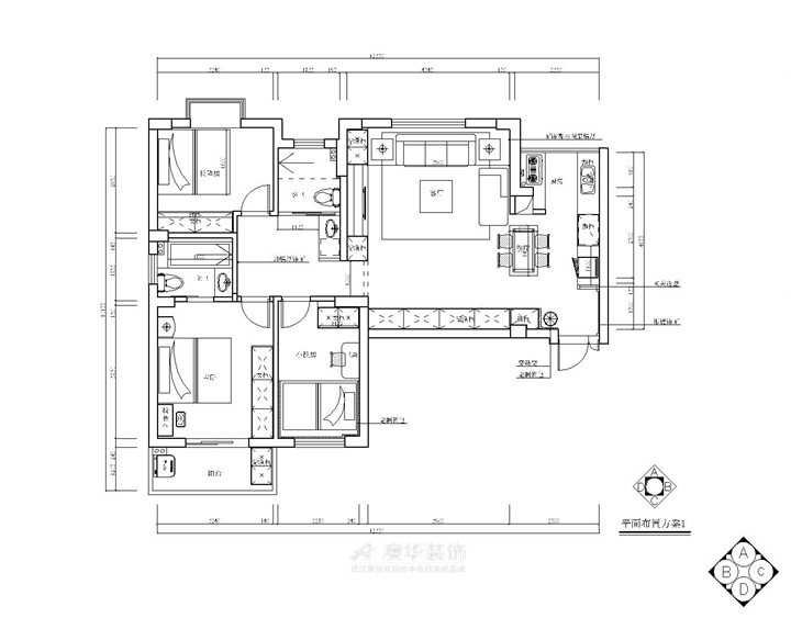
濱江軍苑130㎡三居室混搭個性家居戶型解析
三居室
130m2
混搭

    案例簡介:對于追求特立獨行的年輕業主們來說,他們對于家往往有著自己的理解,也因此設計師們在為年輕業主設計房屋時需要更深入的了解他們的喜好與需求。而本案例的業主既喜歡現代的時尚元素,又對工業復古元素有著濃烈的興趣,因此設計師選用了將現代風與工業風進行混搭,將各種時尚元素搭配以做舊元素,呈現出一個個性化十足的家居空間,以迎合業主的審美與個人追求。


    戶型解析:




    濱江軍苑這套三居室房屋面積約為130㎡,屬于大戶型房屋,整體戶型結構較為平整且南北通透,因此設計師在進行規劃設計的時候充分的利用了戶型結構的優勢,將室外光線引入室內,有效提升了整個家居空間的采光度。而由于客廳區域相對比較狹長,因此被劃分出一塊區域改造為就餐區域,以讓空間格局的視覺效果更加協調。


    客廳:




    為區分就餐區域與會客區域,同時滿足業主的需求,設計師在會客區域選用了大量的fugue工業元素,如燈飾、背景墻,通過做舊的出來來營造一種個性家居感。


    餐廳:




    餐廳區域使用了大量的復古綠色作為主基調色,強調了一種復古工業的朋克氣息。


    廚房:




    廚房區域選用了以就餐區域一致的綠色儲物柜,保障空間整體的銜接感。


    臥室




    為滿足業主審美,突出空間個性化,臥室區域選用了大面積的黑色作為背景墻設計,此外沒有任何軟裝點綴,簡約高級而又充滿濃烈的個人色彩。


    衛生間:



    衛生間區域則使用了簡約的黑白配色,耐看且易于打理。而帶有印花的門簾則起到一定干濕分離的作用。


九臺別墅 292㎡ 復式美式浪漫院落戶型解析
LOFT
292m2
美式

    案例簡介:本案例的業主對于生活品質有著較高的要求,且家庭成員較多,因此在購房時特意買了一個帶有露臺的雙層房屋,在滿足基本起居使用需求的前提下追求生活品質。而根據業主的介紹,設計師從人性化的設計角度出發,充分考慮不同家庭成員的使用需求,在美式裝修風格的主基調下雜糅了多種元素,以打造一個個性而又有品質的家居空間。


    戶型解析:



    九臺別墅的這套復式別墅的面積為292㎡,雖然面積不算大,但是由于層數較多,為復式設計且帶有地下室,因此整體的可利用設計面積較大,能夠根據業主的需求與審美進行更為合理的規劃設計。設計師根據業主家庭成員的需求,分別設置了兒童房、老年人,并使用不同類型元素,以滿足不同家庭成員的居住及審美需求。


    客廳:




    客廳則利用家具的造型來營造一種典雅高貴的品質感,沙發腳的造型設計、鏤空的藝術置物柜都讓整個會客區域流淌著貴族典雅氣息。


    餐廳:




    大理石暗紋地板清冷而又不失高雅氣息,搭配以圓形藝術感吊燈設計、復古造型吊燈,為就餐區域奠定了典雅格調氣息。


    廚房:


廚房1.jpg

    廚房使用了大面積的藍色進行裝飾點綴,強調個性感。而透明玻璃滑門的存在除了能夠起到空間分隔的作用,還提升了家居空間的通透感。


    兒童房:




    卡通造型的墻面設計讓兒童房的童真趣味感十足,兩面墻都設置了大面積的窗戶,確保室內空氣的流通。


    地下室:




    大理石背景墻搭配上灰色地磚,為地下空間營造了一種清雅的氣質。而是絲絨材質的沙發則讓空間多了一抹柔和溫馨感。


    衛生間:






    衛生間區域借助黑白色瓷磚的碰撞營造一種超現代的時尚感,而造型獨特的置物柜與鏡子,則讓衛生間區域多了一抹精致的貴族氣息。


案例賞析
首席設計師
從業年限 : 1993
擅長風格 : 現代簡約,新中式,輕奢,日式,北歐,法式,歐式,美式,其他
設計案例 : 保利中央公館、復地東湖國際、漢口城市廣場、華潤置地橡樹灣、九龍倉月璽、尚湖熙園、觀瀾國際、華潤置地中央公園、東湖壹號、華潤悅府
預約數量 : 168
找TA設計
算一算我家裝修需要多少錢
    • 張女士
      132****178
      200m2
    • 成先生
      134****4856
      83m2
    • 董先生
      137****2569
      95m2
    • 成先生
      133****7485
      130m2
    • 李先生
      150****4475
      220m2
    • 張先生
      139****5050
      187m2
    • 王女士
      178****4563
      168m2
    預約設計師
    姓名*
    樓盤*
    電話*
    *為了您的權益, 您的隱私將嚴格保密
    預約成功
    您已報名成功, 稍后會有客服人員聯系您。 您的隱私將被嚴格保密。
    關注二維碼了解更多裝修知識
    聯系我們
    裝修咨詢電話 : 027-82411111
    售后服務電話 : 027-82866788
    公司地址 : 武漢市江岸區澳門路232號金冠大廈
    關于我們
    友情鏈接 :
      武漢澳華裝飾設計工程有限公司 頁面版權所有 m.lygtdj.com

      算一算,您家裝修需要花多少錢?

      知精準報價 避裝修深坑

      01/03

      選擇您喜歡的風格

      • 現代輕奢

      • 現代美式

      • 北歐

      • 新中式

      • 歐式

      • 其他

      算一算,您家裝修要花多少錢?

      知精準報價 避裝修深坑

      02/03

      選擇房屋面積區間

      • 80-100㎡
      • 100-140㎡
      • 140-200㎡
      • 200-300㎡
      • 300㎡以上

      03/03

      您的戶型

      • 兩居室

      • 三居室

      • 四居室

      • 五居室

      • 六居室

      算一算,您家裝修要花多少錢?

      知精準報價 避裝修深坑

      0%

      稍等片刻,您的報價正在生中......

      算一算,您家裝修要花多少錢?

      知精準報價 避裝修深坑

      您的完整報價已經生成

      報名成功享搶訂優惠名額

      每日僅限前10名用戶