今日股市推荐排名-热点股票指标公式-【东方资本】,如何股票做空,可靠的股票配资平台是哪个,股票开通t 0最简单三个步骤

24小時咨詢電話
027-82411111
當前位置 : 首頁 > 大咖設計 > 王峰
找TA設計
經驗豐富
DESIGNER
王峰 主任設計師
從業時間 : 1993 作品數量 :1套
司 : 總部旗艦店
業主評價 :
    • 工作細致
    • 效果和預想一致
    • 設計有品位
    • 很有責任心
    • 有創意
    • 建議很合理
    現代簡約,輕奢,新中式,中古風,意式風
    • 個人簡介
    • 設計理念
    • 經典樓盤

    • 中國裝飾協會高級會員

      中國建筑裝飾協會高級室內設計師


      2003年全國居室裝飾實例大賽一等獎

      2004年武漢首屆室內裝飾設計大賽特等獎

      2005年武漢地區首屆居室裝飾設計和實例作品大賽一等獎

      2005年武漢市首屆居室室內設計大賽二等獎

      2021年武漢第五屆空間環境藝術設計大賽住宅空間類三等獎


    • 好的設計作品,是使人生活得更為幸福的設計作品


    • 華僑城歡樂天際,世紀江尚,雍豪府,楚世家CBD,華潤中央公園,金地自在城,綠地漢口中心等


    相關案例
    戶型解析
    在施工地
    其他案例推薦
    相關案例
    戶型解析
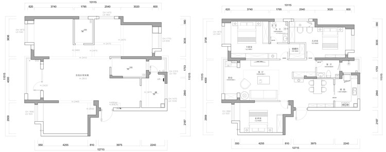
    金橋庭院135㎡三居室輕奢風格住宅戶型解析
    三居室
    135m2
    輕奢風

        案例簡介:裝飾的靈魂是設計,設計的靈魂是文化。業主是多子家庭,為了可以居住的很舒適便購買了三居室的房屋。在房屋的設計中采取了業務喜歡的輕奢風格,在每一個臥室設計中根據業主以及孩子的喜好來進行。寬敞的客廳作為一家人休閑娛樂的理想選擇,對于多子家庭而言,每一個空間都得到充分利用并且不擁擠。


        戶型解析:


    1.jpg


        金橋同源三居室輕奢風格住宅的面積是135平方米,戶型整體是很方正的,三個臥室大小符合居住的要求。戶型內部的客廳空間足夠大,廚房以及衛生間的分布都可以滿足多子家庭的需要。為了確保更好的享受陽光,陽臺的光線也是很充足的,戶型設計達到了四面通風的要求,居住中很舒適。


        客廳:


    2.jpg


        白色為主色調搭配深色的家具,不僅僅看起來簡單,又可以感受到濃濃的輕奢風格。


        餐廳:


    3.jpg


        餐廳和洗手臺連接,用餐之前洗手很方便。餐桌餐椅顏值高,餐椅使用舒適度很高。


        臥室:


    4.jpg


        臥室和辦公融合為一體,家長孩子互相不會影響工作以及學習,工作完后便可以上床可以得到充足的休息。


    在施工地
    • 開工
    • 前期
    • 中期
    • 后期
    • 竣工
    預約設計師
    海量行家, 搶訂免費設計服務
    每日前20名申請用戶, 獲3D裝修設計圖
    預約設計師
    姓名*
    樓盤*
    電話*
    *為了您的權益, 您的隱私將嚴格保密
    推薦相關案例
    免費獲取同款設計方案
    姓名*
    樓盤*
    電話*
    *為了您的權益, 您的隱私將嚴格保密
    預約成功
    您已報名成功, 稍后會有客服人員聯系您。 您的隱私將被嚴格保密。
    關注二維碼了解更多裝修知識
    聯系我們
    裝修咨詢電話 : 027-82411111
    售后服務電話 : 027-82866788
    公司地址 : 武漢市江岸區澳門路232號金冠大廈
    關于我們
    友情鏈接 :
      武漢澳華裝飾設計工程有限公司 頁面版權所有 m.lygtdj.com

      算一算,您家裝修需要花多少錢?

      知精準報價 避裝修深坑

      01/03

      選擇您喜歡的風格

      • 現代輕奢

      • 現代美式

      • 北歐

      • 新中式

      • 歐式

      • 其他

      算一算,您家裝修要花多少錢?

      知精準報價 避裝修深坑

      02/03

      選擇房屋面積區間

      • 80-100㎡
      • 100-140㎡
      • 140-200㎡
      • 200-300㎡
      • 300㎡以上

      03/03

      您的戶型

      • 兩居室

      • 三居室

      • 四居室

      • 五居室

      • 六居室

      算一算,您家裝修要花多少錢?

      知精準報價 避裝修深坑

      0%

      稍等片刻,您的報價正在生中......

      算一算,您家裝修要花多少錢?

      知精準報價 避裝修深坑

      您的完整報價已經生成

      報名成功享搶訂優惠名額

      每日僅限前10名用戶