今日股市推荐排名-热点股票指标公式-【东方资本】,如何股票做空,可靠的股票配资平台是哪个,股票开通t 0最简单三个步骤

24小時咨詢電話
027-82411111
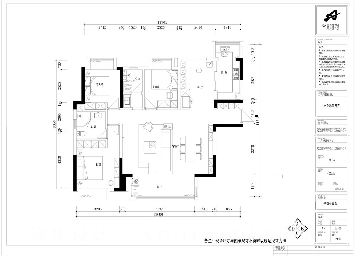
當前位置 : 首頁 > 實景案例 > 交投逸景天宸 140㎡
  • 交投逸景天宸 140㎡ | 輕奢
    設計理念
    設計師將空間化零為整,確保了整體的動線流暢,保持了南北通透戶型的采光和通風,再此基礎上采用金屬線條與石材的巧妙結合,打造出輕奢華麗的整體效果。
    更新時間: 2023-03-28      瀏覽人數:
    風格: 輕奢    面積: 140㎡
  • 設計師將玄關與與廚房打通,形成開闊式入戶,從玄關到客餐廳,視野開闊。
  • 設計師大膽的運用了金屬線條配合石材跟各種裝飾的結合體現出整個客餐廳的華麗與高雅。
  • 設計師采用歐式與現代輕奢結合的方式使整體效果達到最好。
  • 運用極致的線條跟曲線突出整體的美感。
裝修風格測試
獲取本案報價
定制同款設計
本案設計師
找TA設計
吳艷 設計總監
擅長風格 輕奢,美式,中古風,意式風,奶油風
個人簡介

中國建筑裝飾協會高級室內設計師

2017年紅璽杯最佳優秀表現獎

2021年中國室內設計年度評選設計優秀獎

2023-2024年度人居空間商業空間“她設計明星設計師”



更多案例
預約設計師
姓名*
樓盤*
電話*
*為了您的權益, 您的隱私將嚴格保密
免費獲取同款設計方案
姓名*
樓盤*
電話*
*為了您的權益, 您的隱私將嚴格保密
預約免費獲取裝修設計方案
姓名*
樓盤*
電話*
*為了您的權益, 您的隱私將嚴格保密
獲取此方案和報價
姓名*
樓盤*
電話*
*為了您的權益, 您的隱私將嚴格保密
預約成功
您已報名成功, 稍后會有客服人員聯系您。 您的隱私將被嚴格保密。
關注二維碼了解更多裝修知識

10秒搞定您的專屬裝修風格

3個問題輕松知道,您最想要的風格

  • 01/ 03

    朋友決定送你一幅畫作為新房賀禮,你最想收到的是哪一張?

    1. 風景畫

    2. 油畫

    3. 水墨畫

    4. 水彩畫

  • 02/ 03

    選擇您最喜歡的動物?

    1. 小貓

    2. 考拉

    3. 海豚

    4. 熊貓

    5. 老虎

    6. 大雁

    7. 兔子

  • 03/ 03

    老板突然通知你,今年公費旅游目的地你來定,你會選擇?

    1. 意大利

    2. 日本

    3. 法國

    4. 美國

    5. 東南亞

    6. 哪里都不去

    開始測試
  • 0%
  • 輸入手機號碼
    獲取測試風格及定制三套裝修方案

聯系我們
裝修咨詢電話 : 027-82411111
售后服務電話 : 027-82866788
公司地址 : 武漢市江岸區澳門路232號金冠大廈
關于我們
友情鏈接 :
    武漢澳華裝飾設計工程有限公司 頁面版權所有 m.lygtdj.com

    算一算,您家裝修需要花多少錢?

    知精準報價 避裝修深坑

    01/03

    選擇您喜歡的風格

    • 現代輕奢

    • 現代美式

    • 北歐

    • 新中式

    • 歐式

    • 其他

    算一算,您家裝修要花多少錢?

    知精準報價 避裝修深坑

    02/03

    選擇房屋面積區間

    • 80-100㎡
    • 100-140㎡
    • 140-200㎡
    • 200-300㎡
    • 300㎡以上

    03/03

    您的戶型

    • 兩居室

    • 三居室

    • 四居室

    • 五居室

    • 六居室

    算一算,您家裝修要花多少錢?

    知精準報價 避裝修深坑

    0%

    稍等片刻,您的報價正在生中......

    算一算,您家裝修要花多少錢?

    知精準報價 避裝修深坑

    您的完整報價已經生成

    報名成功享搶訂優惠名額

    每日僅限前10名用戶